Treppen haben die Menschen schon immer fasziniert.
Oft stehen sie als Synonym für Aufstieg, für das Erreichen einer höheren Ebene.
Treppen sind aber auch das Sinnbild für besondere Auftritte, für Präsenz.
Treppen in ihren unterschiedlichen Formen und Ausführungen sind genormt
in der DIN 18065.
Mit der Treppensteigung bezeichnet man den Steigungswinkel oder das
Steigungsverhältnis der Stufen zu einander, d.h. wie steil eine Treppe aufgebaut wird.
Wird die Steilheit im Winkel mit Gradangabe dargestellt, spricht man vom Steigungswinkel.
Stellt man die Steilheit mit dem Verhältnis der Stufen zueinander dar,
also Stufenhöhe zur Tritttiefe, spricht man vom Steigungsverhältnis

Die jeweils 18. Stufe (Auftritt) muß als Podest verbaut sein.
Die Steigung darf nicht höher als 19 cm sein.
Der Auftritt nicht mehr als 37 cm und nicht weniger als 26 cm tief sein.
Die Steigungsregeln setzen sich zusammen aus:
Schrittmaßregel,
Sicherheitsregel,
Bequemlichkeitsregel.
Spindeltreppen-Stufen mit Rohrhülse Spindeltreppen-Stufen mit Rohrhülse Das daraus entstehende optimale Steigungsverhältnis ist momentan 17/29 cm (Höhe/Tiefe) = Steigungswinkel ca. 30°
Die Maße werden alle paar Jahrzehnte korrigiert und dem Wachstum der Menschen angepaßt.
Auf unseren folgenden Seiten werden wir uns nur mit den industriell nutzbaren Treppen beschäftigen, die aber ohne Zweifel ihre besondere Bedeutung und ihren hohen Nutzen haben.

Steigungswinkel für Treppenbau
Das daraus entstehende optimale Steigungsverhältnis ist momentan 17/29 cm (Höhe/Tiefe) = Steigungswinkel ca. 30°
Die Maße werden alle paar Jahrzehnte korrigiert und dem Wachstum der Menschen angepaßt.
Auf unseren folgenden Seiten werden wir uns nur mit den industriell nutzbaren Treppen beschäftigen, die aber ohne Zweifel ihre besondere Bedeutung und ihren hohen Nutzen haben

Spindeltreppen-Stufen mit Rohrhülse

Spindeltreppen-Stufen als Einlegestufen mit Sicherheitsantrittskante
Die Spindeltreppe hat eine Mittelsäule, die sogenannte Spindel.
Sie wird, je nach bauseitigen Begebenheiten, links- oder rechts gewendelt. Spindeltreppen werden im Außeneinsatz üblicherweise aus Stahl verzinkt, pulverbeschichtet oder aus Edelstahl gefertigt.
Vorteile: geringer Platzbedarf, hohe statische Eigenschaften.
Einsatz: im Innen- und Außenbereich, als Wohnraumtreppen, Balkontreppen,
Fluchttreppen, Industrietreppen.


Die Wendeltreppe hat als seitliche Führung eine oder zwei gewendelte Wangen.Bei der einwangigen Wendeltreppe ist die Wange entweder innen oder außen angebracht, die doppelwangige Wendeltreppe führt die Wangen innen und außen.Durch diese Bauweise entsteht das für diese Treppe typische Treppenauge.Sie wird, je nach bauseitigen Begebenheiten, links- oder rechtsgewendelt. Wendeltreppen werden im Außeneinsatz üblicherweise aus Stahl verzinkt, pulverbeschichtet oder aus Edelstahl hergestellt.
Einsatz: im Innen- und Außenbereich, als Wohnraumtreppen, Balkontreppen,Fluchttreppen.

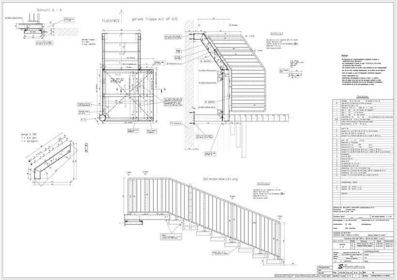
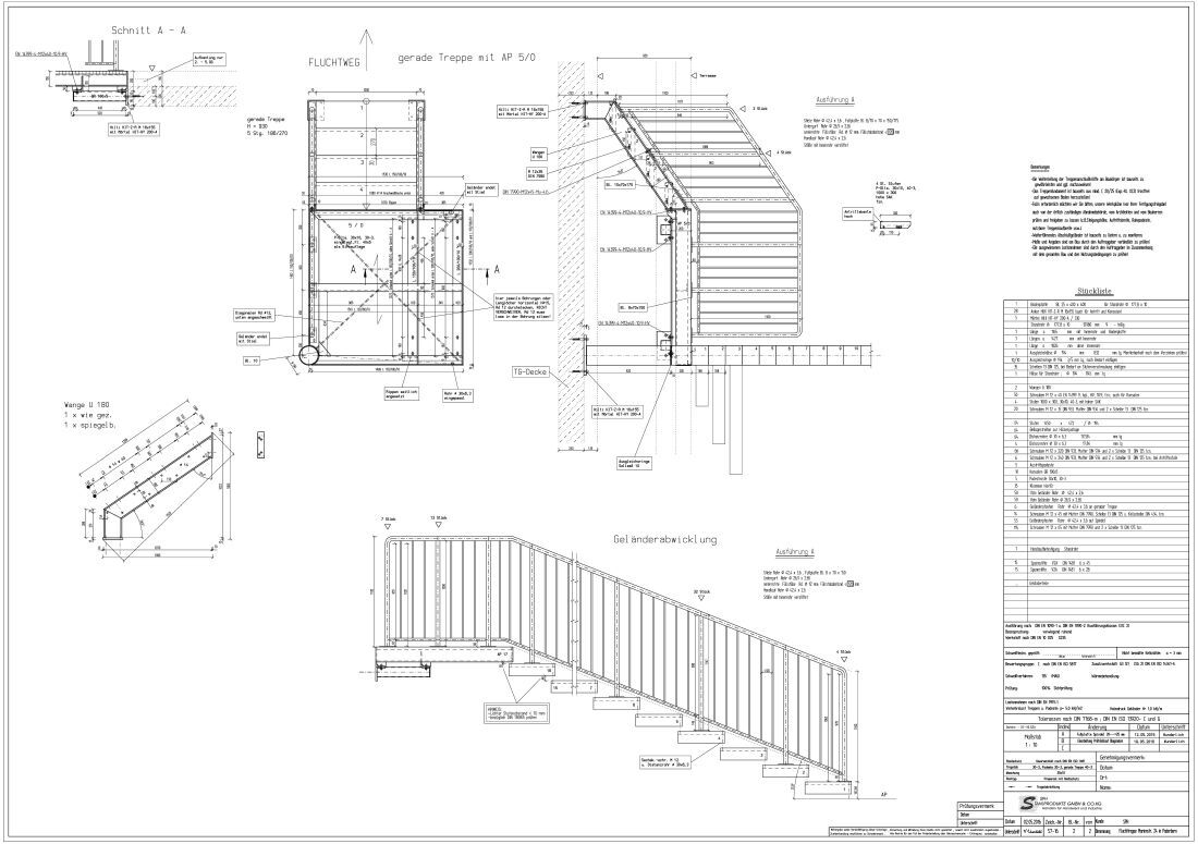
Alle ein- oder mehrläufigen Treppen werden auch als sogenannte gerade Treppen bezeichnet.
Einläufig ist eine Treppe, wenn sie ohne Podest nach oben steigt.Mehrläufig, wenn sie durch Podeste geteilt wird.Gegenläufige Treppen ändern nach jedem Zwischenpodest die Laufrichtung.
Hergestellt werden sie im Außeneinsatz üblicherweise aus Stahl verzinkt,pulverbeschichtet oder Edelstahl.Einsatz: im Innen- und Außenbereich,als Wohnraumtreppen, Balkontreppen,Industrietreppen als Treppentürme.



Geländer A Typ A1
Belastung: 0,5 KN/m
Geländerhöhe: 1000 mm
Stütze Rohr: ø 42.4 x 4
Fußplatte: Fl. 45 x 10
Geländerpfosten sind am Handlauf flach gedrückt!
Ausführung A1/2
Geländer in mehreren Segmenten werden zusammengesteckt, versplintet und verschraubt.
Belastung: 1,0 KN/m
Geländerhöhe: 1000 mm
Fußplatte: Fl. 150 x 60 x 12
Geländerpfosten sind am Handlauf gefräst!


Geländer B Typ B1
Belastung: 0,5 KN/m
Geländerhöhe: 1000 mm
Stütze Rohr: ø 42.4 x 4
Fußplatte: Fl. 45 x 10
Geländerpfosten sind am Handlauf flach gedrückt!
Ausführung B1/2
Geländer in mehreren Segmenten werden zusammengesteckt, versplintet und verschraubt.
Belastung: 1,0 KN/m
Geländerhöhe: 1000 mm
Fußplatte: Fl. 150 x 60 x 12
Geländerpfosten sind am Handlauf gefräst!
Belastung: 0,5 KN/m
Geländerhöhe: 1000 mm
Stütze Rohr: ø 42.4 x 4
Fußplatte: Fl. 45 x 10
Geländerpfosten sind am Handlauf flach gedrückt!
Geländerpfosten sind am Handlauf gefräst!
Ausführung B1R
Geländer in mehreren Segmenten werden zusammengesteckt, versplintet und verschraubt.


Geländer C Typ C1-C7
Geländer in mehreren Segmenten werden zusammengesteckt und versplintet.
Belastung: 0,5 KN/m
Geländerhöhe: 1000 mm
Stütze Rohr: ø 42.4 x 4
Fußplatte: Fl. 45 x 10
Geländerpfosten sind am Handlauf flach gedrückt!


Geländer B Typ B3
Geländer in mehreren Segmenten werden zusammengesteckt und versplintet.
Belastung: 0,5 KN/m
Geländerhöhe: 1000 mm
Stütze Rohr: ø 42.4 x 4
Fußplatte: Fl. 45 x 10
Geländerpfosten sind am Handlauf flach gedrückt!


Geländer B Typ B3
Geländer in mehreren Segmenten werden zusammengesteckt und versplintet.
Belastung: 0,5 KN/m
Geländerhöhe: 1000 mm
Stütze Rohr: ø 42.4 x 4
Fußplatte: Fl. 45 x 10
Geländerpfosten sind am Handlauf flach gedrückt!
Ausführung C2-C7 gem. folgender Beschreibung (Anzahl der Mittelgurte entsprechend der Bezeichnung C2-C7)
Geländer in mehreren Segmenten werden zusammengesteckt und versplintet.
Belastung: 0,5 KN/m
Geländerhöhe: 1000 mm
Stütze Rohr: ø 42.4 x 4
Fußplatte: Fl. 45 x 10
Geländerpfosten sind am Handlauf flach gedrückt!

Die Beschaffenheit der Stufen ist von den Witterungsverhältnissen abhängig.
Im Außenbereich sollen sie bei Nässe, Eis und Schnee die erforderliche Trittsicherheit bieten.
Im Innenbereich können die Materialien davon fast unabhängig variieren, und es sind den Gestaltungsmöglichkeiten kaum Grenzen gesetzt.
Beispiele für den Außenbereich:
Beispiele für den Innenbereich:
Bauart geprüft; entsprechend der europäischen Norm DIN EN ISO 14122-4
bzw. DIN 18799-1 und DIN 14094-1
Arbeitsstättenrichtlinie ASR A 1.8
DGUV Information 208-032 und geltenden Unfallverhütungsvorschriften.
Ortsfeste Steigleitern und Notleiteranlagen haben den Vorteil des geringen Platzbedarfes und der dauerhaften Nutzung.
Sie lassen sich an Wänden von Hallen, Industriegebäuden und Maschinenanlagen
in nahezu unbegrenzter Höhe montieren.
Sie sind im Außenbereich sowohl im Innenbereich gleichermaßen vorteilhaft einzusetzen.
Ruhepodeste und Rückenschutz dienen der nötigen Sicherheit und dem Steigkomfort.
Hergestellt werden sie aus Stahl verzinkt, Edelstahl, Aluminium (auch eloxiert), GFK
Einsatz: Fluchtleitern, Versorgungs- und Inspektionsleitern für Gebäudedächer oder Kanalisation.
Im Inneren von Windkrafträdern und ähnlich engen Räumlichkeiten.
Zu beachten ist bei der Planung von Steigleitern, daß



Die Herstellung von Stahl-Treppenanlagen erfordert ein hohes Maß an Flexibilität und handwerklichem Können. Das Ziel ist, dies mit einer wirtschaftlichen Serienproduktion zu verbinden, um preislich attraktive Lösungen anbieten zu können.
Eine optisch Ästhetik die den baurechtlichen Vorschriften entspricht, mit einer kostenbewußten Gesamtkonzeption, ist hierbei stets unser Bestreben.